Hamernia, działka dla inwestora

Działka (Budowlana) na sprzedaż
5 950 000,00 PLN , Pow. 3 780 m2
Drukuj ofertę
Drukuj ofertę
Typ nieruchomości:
Działka
Powierzchnia:
3 780 m2
Typ transakcji:
sprzedaż
Lokalizacja:
Kraków Krowodrza
Numer oferty:
SUP119342
Cena za m2:
1 574,07 PLN

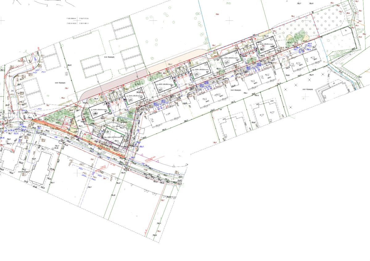
Działka z prawomocnym pozwoleniem na budowę. PUM: ok. 1240 m2
Przedmiotem inwestycji jest budowa 7 wolnostojących budynków mieszkalnych jednorodzinnych (w tym: 6 budynków dwulokalowych i 1 budynku jednolokalowego)
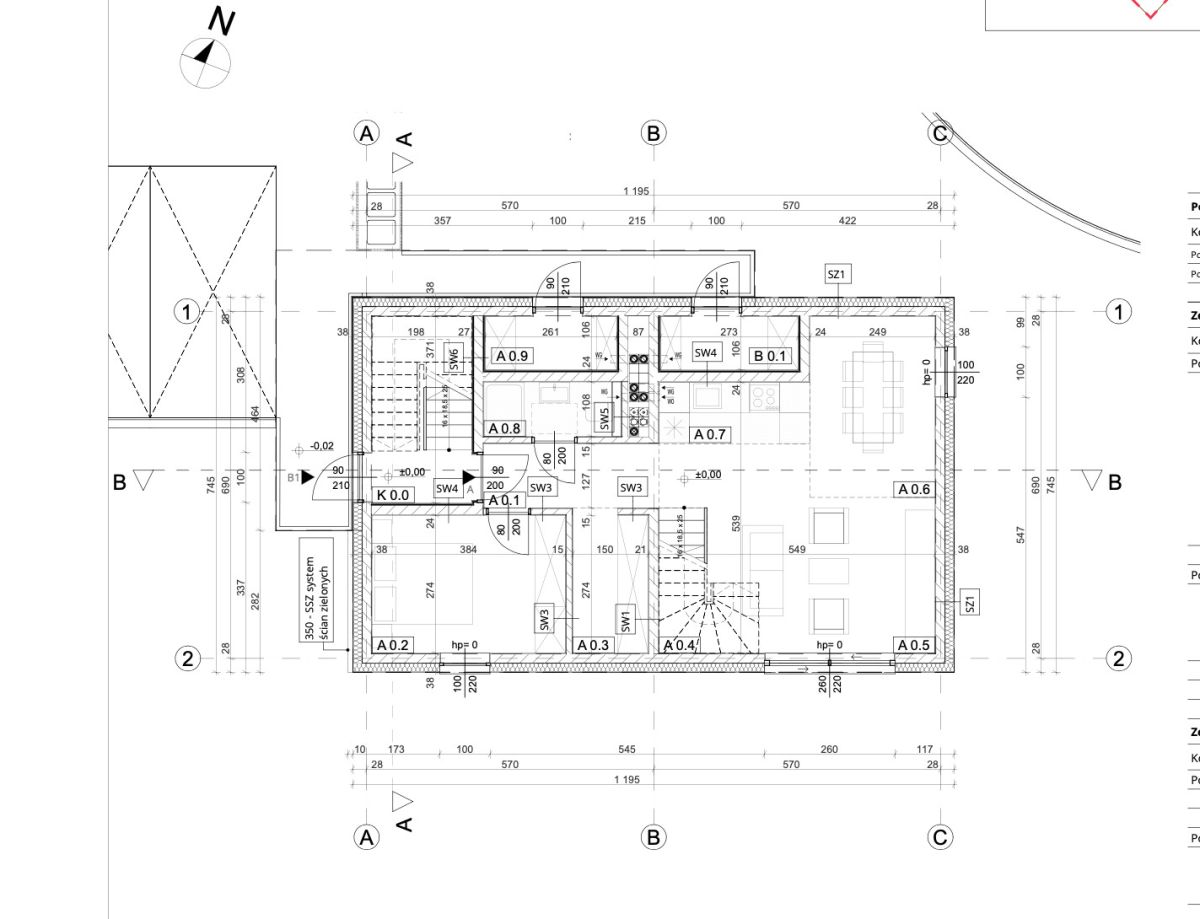
Sześć z projektowanych budynków (nr 2, 3, 4, 5, 6 i 7) ma trzy kondygnacje nadziemne i zaprojektowano w nich po dwa lokale mieszkalne. Jeden budynek (nr 1) ma dwie kondygnacje nadziemne i jest jednolokalowy.
Zaprojektowane wraz z instalacjami wewnętrznymi: wodociągową, kanalizacji sanitarnej, kanalizacji opadowej, elektryczną, słaboprądową, grzewczą, wentylacji grawitacyjnej. 

Teren inwestycji znajduje się w granicach obowiązującego miejscowego planu zagospodarowania przestrzennego obszaru "Wola Justowska - Hamernia" uchwalonego uchwałą Nr XLIX/1345/20 Rady Miasta Krakowa z dnia 2 grudnia 2020 r. Działki objęte inwestycją znajdują się w terenie zabudowy mieszkaniowej jednorodzinnej oznaczonym symbolem MN.27 - o podstawowym przeznaczeniu pod zabudowę jednorodzinną. 

 



Nieprawidłowy adres E-mail